<img height="1" width="1" style="display:none;" alt="" src="https://px.ads.linkedin.com/collect/?pid=7483292&amp;fmt=gif">
Products
Products
Back to Main

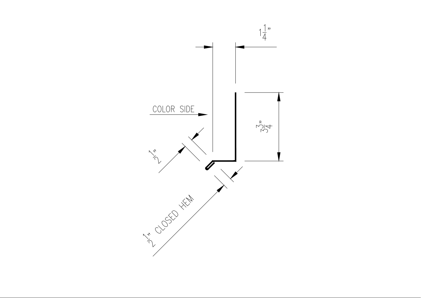
Base Trim - # WS-1217/WS6-78U

Wainscoting Transition - Board & Batten To 7/8" Corrugated - Horizontal Installation

Detail #WP-WSD-W32

WS-1217 Base Trim Dimensions

This detail assumes that you haven't purchased or installed the trim for the 7/8" Corrugated panels. If you have already installed those pieces you will not need all the trim that's shown in this detail.

Click To Enlarge

WS6-78U Base Trim Dimensions

This detail assumes that you haven't purchased or installed the trim for the 7/8" Corrugated panels. If you have already installed those pieces you will not need all the trim that's shown in this detail.

CLICK TO ENLARGE

WS8-78U Head Trim Dimensions

This detail assumes that you haven't purchased or installed the trim for the 7/8" Corrugated panels. If you have already installed those pieces you will not need all the trim that's shown in this detail.

Click To Enlarge

WS-1205 Z Metal Dimensions

This detail assumes that you haven't purchased or installed the trim for the 7/8" Corrugated panels. If you have already installed those pieces you will not need all the trim that's shown in this detail.

Click To Enlarge

WAINSCOTING TRANSITION TRIM DETAIL - BOARD & BATTEN TO 7/8" CORRUGATED - HORIZONTAL INSTALLATION - PARTS LIST

This parts list is designed to help you calculate the quantity of accessories that you’ll need for your trim installation. It has all of the accessories that are needed to install 1 full piece of trim, which is 120" long. To calculate the total number of accessories you will need for your job, simply take the number of trim pieces associated with the trim part purchased and multiply the list by that number for a total for your project.

COMPONENTS LIST

  • 1 Piece Base Trim - WS-1217
  • 1 Piece Base Trim - WS6-78U
  • 1 Piece Head Trim - WS8-78U
  • 1 Piece Z Metal - WS-1205
  • 30 Pancake Head Screws (#10X1") NO Washer
    Verify Metal To Wood
  • 10 Rivets
  • 1 Tube Of Butyl Sealant
Just in case you forgot

ADDITIONAL ITEMS YOU MAY NEED...