<img height="1" width="1" style="display:none;" alt="" src="https://px.ads.linkedin.com/collect/?pid=7483292&amp;fmt=gif">
Products
Products
Back to Main

LOOKING FOR WESTERN RIB® (7.2 PANEL) INSTALLATION VIDEOS?

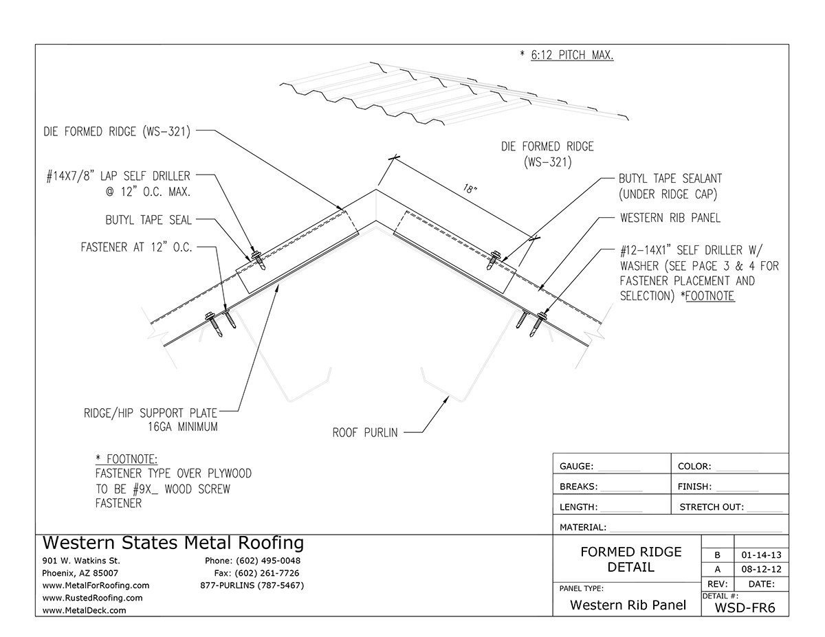
RIDGE CAP FOR WESTERN RIB/7.2 PANEL

Die Formed Ridge Cap - Part #WS-321

Die formed ridge cap will match the profile of the metal roofing panel. It's difficult to install and both ends of the ridge need to line up perfectly or it will not nest. It's not recommended for roofs with a pitch that's greater than 6" in 12"

WS-321 - PARTS LIST

This parts list is designed to help you calculate the quantity of accessories that you’ll need for your trim installation. It has all of the accessories that are needed to install 1 full piece of trim, which is 36" long. To calculate the total number of accessories you will need for your job, simply take the number of trim pieces associated with the trim part purchased and multiply the list by that number for a total for your project.

Components List

  • 1 Piece Ridge Cap Trim - WS-321
    Roof Pitch Required/6" in 12" Maximum Roof Pitch
  • 16 Lap Screws (Metal to Metal) With Sealant Washer
  • 10 Linear Feet Of Double Sided Butyl Tape
Just in case you forgot

ADDITIONAL ITEMS YOU MAY NEED...