<img height="1" width="1" style="display:none;" alt="" src="https://px.ads.linkedin.com/collect/?pid=7483292&amp;fmt=gif">
Products
Products
Back to Main

LOOKING FOR PBR PANEL INSTALLATION VIDEOS?

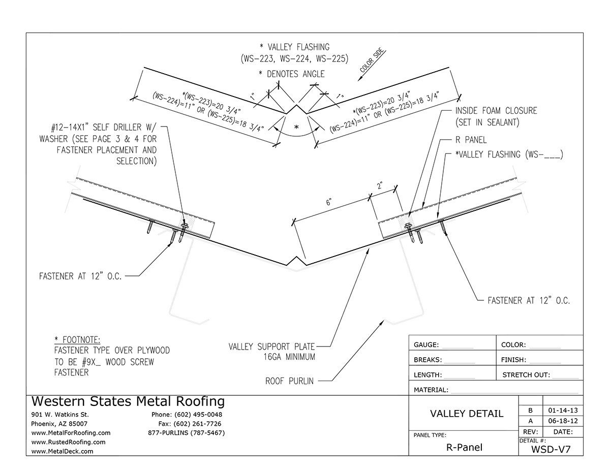
Valley Trim For PBR Panel/R Panel Metal Roofing

Oversized Valley Flashing - Part #WS-223

Valley trim is a raised section at the lowest part of the valley that's designed to keep water from moving up the opposite slope and penetrating the roof. Valley trim is installed prior to the installation of the metal roofing panels. The valley of a metal roof is an area created by two intersecting slopes.

WS-223 - PARTS LIST

This parts list is designed to help you calculate the quantity of accessories that you’ll need for your trim installation. It has all of the accessories that are needed to install 1 full piece of trim, which is 120" long. To calculate the total number of accessories you will need for your job, simply take the number of trim pieces associated with the trim part purchased and multiply the list by that number for a total for your project.

COMPONENTS LIST

  • 1 Piece Valley Trim - WS-223
    Roof Pitch Required
  • 20 Pancake Head Screws (#10x1") NO Washer
  • 20 Linear Feet Of Outside Foam Closures
  • 20 Linear Feet Of Double Sided Butyl Tape
  • 1 Tube Silicone Sealant
How To Install Valley Trim

Valley Flashing Installation Videos

Open valley trim installation on a corrugated metal roofing panel. Learn how to cut the valley trim for the eave and ridge, overlapping, and fastening. This video is for an exposed fastener panel such as: 7/8" Corrugated, R Panel, and 7.2 Panel.

Just in case you forgot

ADDITIONAL ITEMS YOU MAY NEED...